

评价报告名称 | 瑞昌市工业气体总厂自动化提升改造项目安全条件评价报告 | ||||
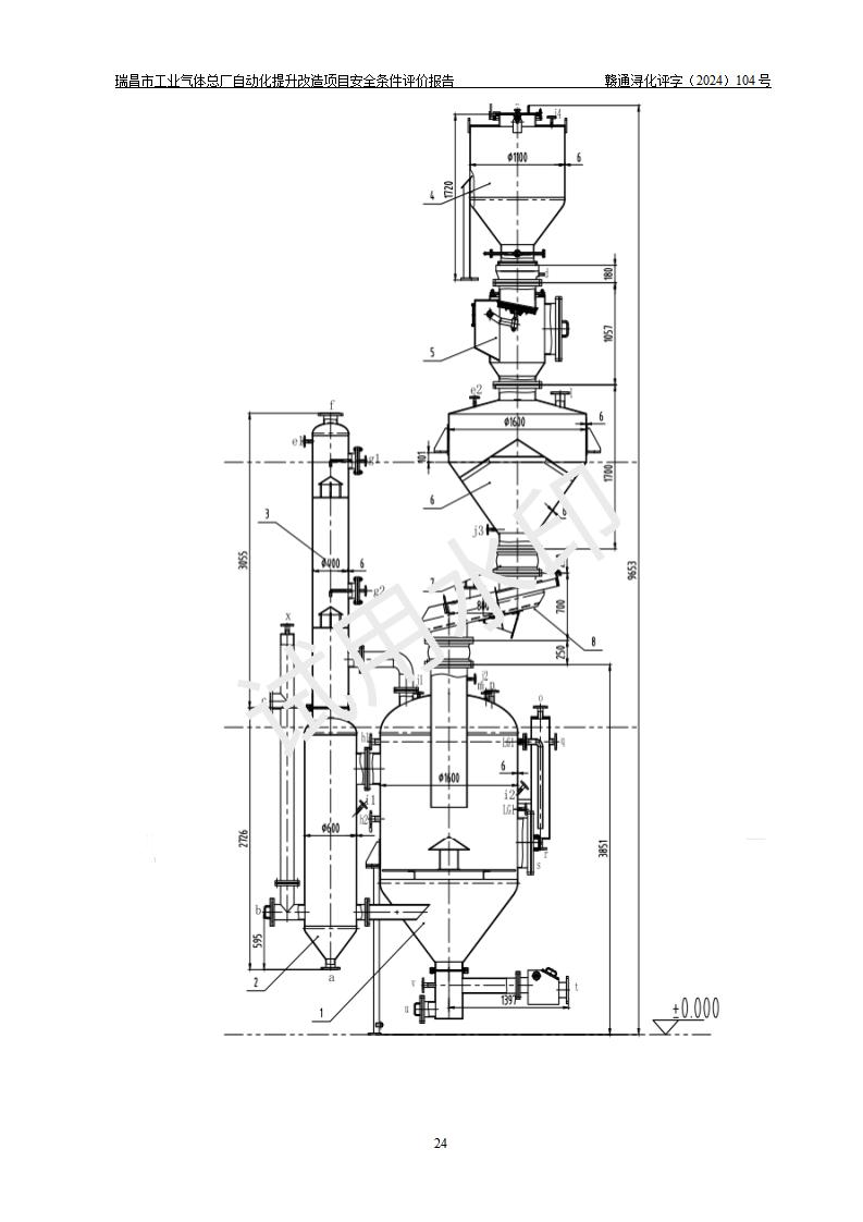
项目简介 | 瑞昌市工业气体总厂地址位于九江市瑞昌市桂林化工园区桂林村毛家墩,注册资本101.5万元,占地面积约22.71亩,该企业于2016年4月取得安全生产许可证(生产许可范围为乙炔);同时设有氧气、氩气储存、充 装装置等(不在本次评价范围)。 该企业在役乙炔生产装置采用电石、水为原料,经水解生成乙炔;生产(含充装)过程中涉及的电石、乙炔、硫酸、氢氧化钠、**等属于危险化学品;其中硫酸、**属于易制毒化学品,乙炔、硫化氢(乙炔气中含有微量)属于重点监管的危险化学品;不涉及重点监管的危险工艺; 本次项目涉及的生产单元、评价不构成危险化学品重大危险源。为了贯彻江西省应急管理厅关于印发《江西省化工企业自动化提升实施方案》(试行)的通知(赣 应急字〔2021〕190 号),企业拟进行自动化提升改造项目。 | ||||
参与评价项目相关人员 | 姓名 | 资格证书号 | 从业登记号 | ||
项目负责人 | 陈润洪 | 1800000000100059 | 015387 | ||
项目组成员 | 陈润洪 | 1800000000100059 | 015387 | ||
陈建彰 | CAWS3500002300237 | 043089 | |||
朱汝玲 | S011032000110191000378 | 028131 | |||
邹孝琴 | S011035000110203001181 | 040635 | |||
杨健健 | S01103500011020200275 | 040553 | |||
报告编制人 | 陈润洪 | 1800000000100059 | 015387 | ||
报告审核人 | 李重阳 | S011035000110201000616 | 026187 | ||
过程控制负责人 | |||||
技术负责人 | 黄伯良 | 1800000000100060 | 013789 | ||
评价结论 | 瑞昌市工业气体总厂自动化提升改造项目选择的工艺过程及设备设施的安全可靠性能达到**法规、标准规定要求;项目存在的危险有害因素可控,在落实本评价报告提出的有关安全对策措施后,其危险有害程度能达到 可以接受的程度,项目建设能够实现安全运行的目标。 | ||||
勘察现场 工作时间 | 2024.8.31 | 报告提交时间 | 2024.10.28 | ||
勘察现场人员 | 陈润洪、陈建彰 | ||||
现场照片 |
| ||||
被评价单位 信息反馈情况 | 满意 | ||||











































































































































